首页 > 轻工行业标准(QB) > QB/T 2468—1999 食品工业用不锈钢螺纹接管器
QB/T 2468—1999

基本信息

标准号: QB/T 2468—1999

中文名称:食品工业用不锈钢螺纹接管器

标准类别:轻工行业标准(QB)

标准状态:现行

出版语种:简体中文

下载格式:.zip .pdf

下载大小:311318

相关标签: 食品 不锈钢 螺纹 接管

标准分类号

关联标准

出版信息

相关单位信息

标准简介

QB/T 2468—1999.
QB/T 2468等效采用国际标准 ISO 2853:1993《食品工业用不锈钢螺纹接管器》。1范围
QB/T 2468规定了食品工业用带梯形螺纹的不锈钢管接管器的尺寸、公差、材料、表面粗糙度、组装及卫生要求。
QB/T 2468的凸套和衬套指定用于QB/T 2467--99《食品工业用不锈钢管》规定的不锈钢管。
2引用标准
下列标准所包含的条文,通过在本标准中引用而构成为本标准的条文。本标准出版时,所示版本均为有效。所有标准都会被修订,使用本标准的各方应探讨使用下列标准最新版本的可能性。
GB/T 1031-95表面粗糙度参数及其数值
GB 1801--79公差与配合尺寸至500mm孔、轴公差带与配合
GB 2828--87逐批检查计数抽样程序及抽样表(适用于连续批的检查〉
GB 2829--87周期检查计数抽样程序及抽样表〈适用于生产过程稳定性的检查)GB 4807~-84食品用橡胶垫片(圈〉卫生标准
GB 5796.1~5796.4--86梯形螺纹
QB/T 2467--99食品工业用不锈钢管
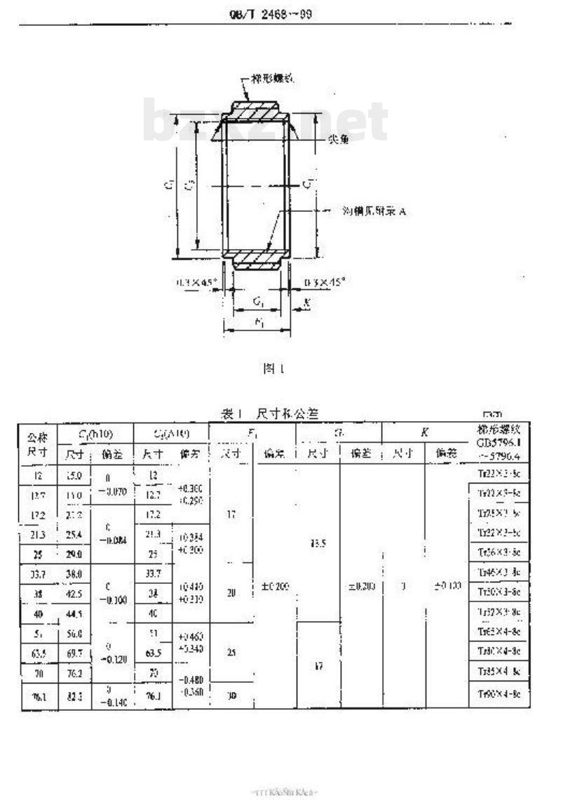
3尺寸和公差
3.1胀接式凸套(见图1)的尺寸和公差按表1的规定,表中极限偏差应符合GB 1801的规定。
6卫生要求
6.1接管器与食品物料接触的所有表面必须易于原位清洗或拆卸后人工清洗。更换件必须容易拆卸。
6.2焊接式凸套和衬套的内部表面应洁净光滑,不得有有害的缺陷或夹杂物,不得有有色金属等粘贴在表面。
6.3密封圈应当采用与食品物料的加工条件及所用的清洗剂相适应的食用橡胶,不应给食品物料带来气味和味道。
7组装
7.1胀接
胀接式凸套和衬套应采用胀管法与钢管端头牢固联接。
7.2焊接
焊接式凸套和衬套应采用对缝焊与钢管端面焊接。
8标记示例
8.1凸套
公称尺寸为38mm的胀接式或焊接式凸套,其标记分别为:胀接凸套38 QB/T 2468--99
焊接凸套38 QB/T 2468一998.2衬套
公称尺寸为38mm的胀接式或焊接式衬套,其标记分别为:胀接衬套38QB/T 2468一99
焊接衬套38 QB/T 2468一998.3螺母
公称尺寸为 38mm 的六角螺母或圆螺母,其标记分别为:六角螺母38 QB/T 2468-99
圆螺母 38 QB/T 2468-998.4密封圈
公称尺寸为38mm的装支撑圈的密封圈和不装支撑圈的密封圈,其标记分别为:装支撑圈密封圈38 QB/T 2468-99
密封圈38 QB/T 2468--99
8.5 支撑圈
公称尺寸为 38mm的支撑圈,其标记为:支撑圈38 QB/T 2468-99
9检验规则

标准图片预览

QB/T 2468—1999 食品工业用不锈钢螺纹接管器
QB/T 2468—1999 食品工业用不锈钢螺纹接管器
QB/T 2468—1999 食品工业用不锈钢螺纹接管器
QB/T 2468—1999 食品工业用不锈钢螺纹接管器
QB/T 2468—1999 食品工业用不锈钢螺纹接管器

标准内容

分类号 X99
备案号5924—1999
中华人民共和国轻工行业标准
QB/T 2468—99
eq1s02853:1993
食品工业用不锈钢螺纹接管器
1999-12-14发布
国家轻工业局
2000-05-01实施
不标性等效采用国际标准1802853:1993食品!业闪不锈钢频效接管器3,电于原标准G%[2076一89≤食品工业川不锈阀管与配件不诱钢端筑接管器》(该标准山围整行[19991112号文发布转化标准号为Q月/3923-99,内容成前)在尺寸和公举、材料方下与JS02853:1993仅较大关异,网对原标准的室要内案改变请记说明灯本极格名称等同采用S02853:1,第3竞尺寸利公差的公称尺寸其公案等同采用ISO2853:1993原差将指用于1S0207:1980规定的不锈均公格小的带小数值寸见格全部完定整关整效,不择合国际标准换性的最基水条件,元比完全必需等同采币1502R53:1993,其公称尺寸即:1S02037:1992规的公称寸。
一第4材科的类体型不锈钢等效兴[302853:[993,原标准采用证号[C9小范通际你程典求,由!念磁商彩响食二业的卫生品成,内此等效国际标准惑变为0CrNi9:原标准采7钢0C+18Ni12M2T大行历际你件要求,本标弹等效国4标雅改变为1r17Ni12Mu.井培材料DJCr7Ni14M02第5音表南机拖度等同冠月1S02853199,原准案精川1面值应小大1.en,降源了含品三生要求,因此有必要修..本标洋的引录、降策卫帮是标准的内录。本标准出巡家程置业局行业产理可提出本标准广全国轻工银标准化市心食品机减化分中心上口本权准起车单位:广东风华高新科法集有限公司策六键书源准件有限公司、中国轻工总会杭州*械设计研护。
本准立要起苹人:少民、既慈赖。自本标准实题之品起,国家轻工业局发布的行业标准QB/T3927一99品1出册不锈钢管与配片不锈钢螺纹按管器废上。rkaNhrKk
中华人民共和国轻工行业标准
食品工业用不锈钢螺纹接管器
QB/T 2468--99
eqv1502853:1993
QB/1392399
本标准等效采用国际松准1S02853:19936食品1用不锈银螺数接管器31范围
本标推规定了食品工此生带步端纹的不锈的者接管器的尺小、公益,对,表面矩糙度、组装及卫兰要求.
水标准的凸会和指造月于QB26一994食品工业用不锈钢管3现汇的不锈钢管
2引用标准
下划标性所包合的录工,通过在本标准中引用而控感为本标准的条文。水球谁出版时所小版本均为有数,所有标性都会报修动,位用本标准的客方应操证阳下刻标推只求质本的可能性。
GB/11031-95表而钮度擎数及其教值GB!801一79公差与配合尺至动m孔:输公花带与配命H2828-87运批检会计做拍择种库及仙样表(适乎连续批的检查周期检查激抽科传序及油单表,适与于生产过程稳定性的签查GB2829--87
GB4807-84食战用搬峻垫片(恶)卫生标准G3796.1--5796.4-86梯形螺纹
QB/12467--99:食品:T.业明不锈钢等3尺寸和公差
3.1张接式凸年见案1)%尺守和公差按券1的规定,表-板限编差应符含GB1811的规定。
国家轻工业局1999-12-14批准
2000-05-01实施
G,(h10)
11.1X4.59
Q8/T2468--99
棉形螺效
测录A
3X15°
表!尺寸称公差
偏尺于
1±2c0
TYr KANKAeA-
房茎:小
+0 131
梯形操终
Tr22x·5c
T22x3-e
T22x3te
TrGX3-Se
TrE=X4-&c
TXd-3e
T9ex4-Be
Q8, 246899
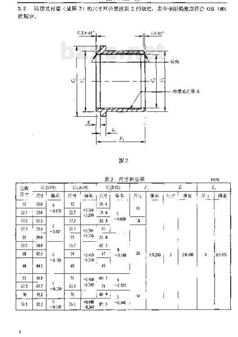
3.2服挖式剂奢(见图2)的型寸公差按表2的规定,表中发限偏差应致个GB10的规定
表2尺寸公差
t(h1c)
Q8/T 2468—99
3.3摘式已会(见图3)的用一动公差按表:的地定,中核限偏差应符台G1801的规定。bzxZ.net
公路六
公家可
一尖角
锦形螺效
U3X45~
一利公差
梯普款
tR 5796.1: 5?9G.1
Tr36X3%
Tr16x.38c
T52 X.18-
Tr65X4-80
T85X4-H
Tr11oX4-8t.
Tr120X4 8
0B/ 2468-88
34煤接式讨案(乳图4)的尺寸利公差核表4教成卖,表中慢限编差应符合GB180规定
公称司
分称尺寸
—6 184
.3.X45
一义产
反·利公差
就定,
QB/T 2468—99
六角蜗月(见图5)的尺寸和公差校表5的规定,然中极龈保差应欲合GB180!函厂样恶提较
称2号
公称见十
尺寸和公学
梯形螺效
G 5796.1--5796.4
T2X3-8H
T293-8H
T:2×3-8
Te36X3·813
Tr4 XF-8
1:52X3-8H
1:65×4
10X48H
F99×4-XH
QB/T 2468 — 39
3.6国蜂母(见图6的尺寸和公差按表6的规定,表中极限询益成符合GB801的我定场然
O(TTI3)
尺,和贫差
.3.46u
M(h15)
-:4门
形源线
415 $796.E.
Tr22×3-8E[
Tr22X3-8H
TT2X X:$H
T3X3-8H
TT36X3 XH
TM6X3-8H
Tr50X38H
Tr52381
Tr65X 4 811
1r8148H
Tr×4 81
Tr110× 4- SH
T 20 × 6- 8H
QB/T 2468-90
3.?密封(见图7)拍尺寸和公差按表?的规定0.3×45
装支携国的帮封配
表?尺寸和公差
公称寸
公称尺寸
不装变推的来封活
OB/T2468—95
3.8文择医(免图8)的尺寸和公差接表8的划定。A
表8尺于租公差
公协尺寸
4材料
= 3,05
A-A致面放大
4.1占,村参、及支控函,一般应洗兴氏体墅不锈翔,射号为0CrN,Cri7Ni2Mo2和ooCrt7NtiMoz
应采用用核度,其技术要求应符台4807的就定。5表面粗糙度
良,衬,探学及文择表面粗超座等合3B103!单规定,精划上面值应不以于1.0
卫生要求
48/12468-99
6.1接管器与食品物料接触的所化表面么袋品于原忧洁洗或拆卸后人工洁洗。好热件心须容品拆证,
6.2提接式凸查和衬套些内部表叫应结行流谢,不得有有贵的缺将或来杂兜,不为诗旁色金虑等粘站在表面:
6.3率封应之采用食存科的加工条性及所用的满产相证应的食用操股,不或给食品物节米气天和味道,
了组装
7.1胀效
账接式凸森和剂奢应深用服管法与详管举头中固联接,7.2焊接
得送式四货和您以来用对部焊促管举面焊将。8标记示别
B.1凸载
公称!寸为38mm物张接元或归接式占会,标记分别为:套38QB/2468:99
学餐套3903/T2468-99
8.2村举
公称尺寸为38mml的张接式焊接武村套,其影记分势步:胎利套38B/246899
择接社旁38.0B3.2458-99
8.3怒舟
公称尺寸为38mm的六角媒母或图媒持,其证年别为:频38QB/T246899
图母38QRT2.169--99
8.4密树图
公称尺寸为38mm的装支择图的密封和不装支荐困的需亚,其标记分别为装文押图密封图38QB/T246899
密对偿38QB/T2468-99
8.5支接圈
公称尺寸为的我图,其为:
撑楼58Q8/2168-99
9检验规则
9.1产显验分出,一查验和型式检验两神9.2、出厂检验接GB3828的规定进行,采山一股查水平正的一次独样方案。9.2.1该势3,56,7章要求进独格收,经制造厂检部门检验合格共内质费含格币方可启厂。
rKNrKa
小提示:此标准内容仅展示完整标准里的部分截取内容,若需要完整标准请到上方自行免费下载完整标准文档。