首页 > 机械行业标准(JB) > JB/T 10455-2004 胶印机测试版
JB/T 10455-2004

基本信息

标准号: JB/T 10455-2004

中文名称:胶印机测试版

标准类别:机械行业标准(JB)

标准状态:现行

发布日期:2004-03-12

实施日期:2004-08-01

出版语种:简体中文

下载格式:.rar.pdf

下载大小:387441

相关标签: 胶印机 测试版

标准分类号

标准ICS号:成像技术>>印制技术>>37.100.10印刷、复制设备

中标分类号:>>>>J87*

关联标准

出版信息

出版社:机械工业出版社

书号:15111.7365

页数:13页

标准价格:12.0 元

出版日期:2004-11-19

相关单位信息

起草人:石玉芬、王超、赵立梅、靳克妍

起草单位:机械工业办公自动化设备检验所

归口单位:全国复印机械标委会

提出单位:中国机械工业联合会

发布部门:中华人民共和国国家发展和改革委员会

标准简介

本标准规定了办公机械胶印机械测试版的技术要求、试验方法、检验规则和标志、包装、运输、贮存的要求。 JB/T 10455-2004 胶印机测试版 JB/T10455-2004 标准下载解压密码:www.bzxz.net

标准图片预览

JB/T 10455-2004 胶印机测试版
JB/T 10455-2004 胶印机测试版
JB/T 10455-2004 胶印机测试版
JB/T 10455-2004 胶印机测试版
JB/T 10455-2004 胶印机测试版

标准内容

ICS 37.100.10
中华人民共和国机械行业标准
JB/T104552004
胶印机测试版
Test ehart for offset itachine2004-03-12发布
2004-08-01实施
中华人民共和国国家发展和改革委员会发布前言
规范性引用文件
图形和尺寸
技术要求
网点区
分辨力区
实心圆
标志图像
网点梯尺
实心黑区
小网点覆盖率区
版权区
粗线区.
记录区
均句线条区
套印十宇线:
垂直、水平起始线区
4.18外观质量
5试验方法
6标志、包装,运输、存
附录A(规范性附录)胶印机測试版使用说明A.】用途
A.2结构组成
A.3控制范围.
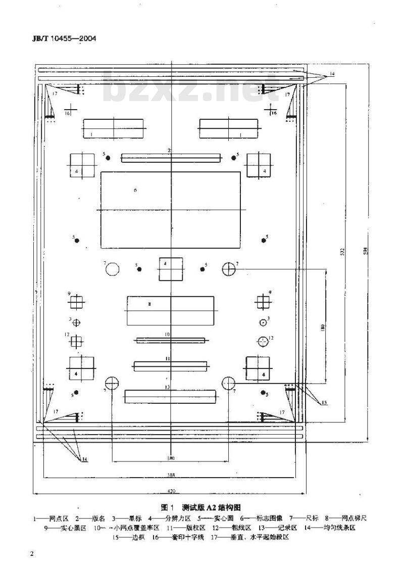
图!测试版A2结构图
图 2测试版A2图样.
图 3测试版 A3结构图
图4测试版A3图样
图5分辨力图
图 6 分辨力图样
JB/T10455-2004
........6
JB/T10455-2004
本标是首砍制定下载标准就来标准下载网
本标准由中国机械丁业联合会提出。前言
本标准电全国复印机械标雄化技术委员会(SAC/TC147)归口本标准起草单位:机械工业小公自动化设备检验所、营口冠华胶印机有限公司、山东潍坊东航精密机械有限公司,
本标准主要起草人;石五芬、靳克妍、王翘、赵立梅。范围
胶印机测试版
JB/T10455—2004
本标谁规定了小公机械胶印机测试版的技术要求、试验方法、检验规则和标志、包装、运输、贮存的要求:
本标准适用于有效印刷幅面A2(594mm×420mm)A3(420mm×297mm)及其以下的办公机械小胶印机。
2规范性引用文件
下列文件中的条款通过本标准的用而成为本标准的案款。凡是注日期的引用文件,其随后所有的修改单(不包括勘误的内容)或修订版均不适用于本标准,然而鼓励根据本标准达成协议的各方研究是否可使用这些文件的新版木,凡是不注日期的引用文件,其最新版本适用于本标准,0B/T100731996静电复印品图像质量评价方法3图形和尺寸
3.1本标准规定的胶印机测试版应采用预涂感光版制作。3.2胶印机测试版的幅面尺寸为:A2(594mm×420mm):
A3 (420mmmX297mm)-
3.3胶印机A2测试版:
3.3.1胶印机.A2测试版的结构见图1。3.3.2胶印机A2谢试版的图样见图2。3.3.3胶印机A2测试版裁切方法为外边框A2:594mm×420mm
内边框4K:532mm×388mm,
3.4、胶印机A3测试版
3.4.1胶印机A3避试题的结构见图3。3.4.2胶印机A3测试版的图样见图4。3.4.3胶印机A3测试版裁切方法为:外边框 A3:420mm×297mm:
内边框8K:388mm×266mm
其他尺寸的裁切以最大限度的包含尽可能多的4.4、4.5、4.7、4.8、4.10信息为原则。4技术要求
4.1网点区
网点区的网线数为3.4L/mml,网点面积率分别为40%、50%、60%,面积为:30mm×30mm。注:此处“Lnum\为“网线数/mun”4.2版名
测试版版名“胶印机测试版”文字采用黑体切号汉字。JB/T 10455—
网点区2-
版名:3-
星标4
图1测试版A2结构图
-分辨力区5—实心圆6-
标志图像
-实心黑区 10=小网点覆盖率区 11--5
边框[6-
版权区12-
套印十字线17-
粗线区
-尺标8-
记录区
垂直、水平起始段区
一网点梯尺
均匀线条区
胶印机测试版
全国复印机械标准化技术委员监制JB/T10455-2004
.IB/T10455—2004
JB/T 10455-2004
-网点区2—
一版名3-
星标4-
图3测试版A3结构图
分辨力区5—
一实心圆6-
9--实心黑区0小网点授盖率区11-一尺标8—
标志图像了一
版权区12—
粗线区月3-
记粱区14-
15—边。16—套印-→字线 17~垂直,水平起始线区一网点梯尺
均勾线条区
胶印机测试版
5%10%20%30%
&OLmfm
50%60%70%50%90%95%
(ESL/R)
(SSt/et)
(004t)
(13)
(150L)
2%3%453
全国复印机械标准化技术委员监制JB/T10455-2004
图4测试版A3国样
JB/T10455-2004
JB/T10455-2004
4.3星标
星标是在直径10mm的圆内:对称分布36根黑色楔形线和36根色模形线,星标的心是径为1mm的白色圆点,每根黑线在圆心的粗细为43um,在外圆的粗细为430um,外圆的线粗为0.50mra
4.4分辨力区
4.4.1分辨力图见图5.分游力图样见图6。4.4.2分辨力图由18组不同空间频率的线条组成,每组线条图均由互相垂直的工条线组成。各纽的空间频率按R20数系,数值分别为1.8、2.0、2.2、2.5、2.8、3.2、3.6、4.0、4.5、5.0、5.6、6.3、7.1、8.09.0、10,!1,12.5,单位为线/mm。注:此处“线/mm\实际是“线对/mm”,通常称对“线/mm\号
图5分辨力图
4.4.3每组线条应消晰可辩。
4.4.4各组空间频率的极限偏差为±5%。6
图6分辨力图样
4.4.5分辩率图位于测试版中心视场和上下视场上,共五处。4.5实心圆
实心圆直径为6mm,密度≥3.5。4.6标志图像
JB/T10455—2004
测试版中大坛图像为全国复印机械标准化技术委员会归口标准版专用图像,该图像应画面清晰,质感性强,
4.7尺标
各对称图形一半的尺标“(?”间距180mm×180mm,±0.2mm,内1字线宽度100μm4.8网点梯尺
每组网点梯尺共5条,其网线数分别为2.5L/mm、3.4L/mm、4.0L/mm、5.4L/mm、6.0L/mm。每条网点梯尺又分为11级:网点面积分别为5%、10%,20%、30%、40%、50%、60%、70%,80%、90%95%。网点面积白分比误差为1%。4.9实心黑区
实心黑这尺寸为18mm×18mm,密度≥3.5。4.10小网点覆盖率区
每组小网点覆盖率图由 13 个区段组成、A、B、C、D、F区段为 8mm× 10mm,E区段 (含 3 个区段)为 8mm×15mm,G区段为 8mm×40mm (含 5个区段)。A:暗调网点区,为6.0L/mm圆形网点,网点面积为80%:B:中间调网点区,为6,0L/mm圆形网点,网点面积为40%:C:粗网点区,为1.2L/mm圆形网点,网点面积为40%D:实心区、网点面积为100%,密度≥3.5:E:含3个区段,为4.8L/mm,网线调值60%~62%,3段线条的排列方向为90°、45″,0″(垂直、倾斜、水平:
F:阴阳细线区,出实心块,间隙块和线条块组成,细线和闻间愿的宽度分别为10um,12um,15um20μm,25μm、30μm,35μm,40um(误差均为±1μm);G:亮调网点区(含5个区段)为6L/mm圆形网点,网点面积分别为1%、2%、3%、4%、5%。4.11版权区
版权区文字采用黑体二号汉字,标有版权单位名称和标准编号。4.12粗线区
粗线图在对称图形一半中,由左边尺寸为15mm×15mm 的正方形和右边直径为15mm的回组成,线宽为2mm。
4.13录区
记录区见图2和图4。
4.14均匀线条区
均匀线条图由空间频率为2L/mm的线条组成,每条线长为6mam。4.15边框
4.15.1测试版A2边框
外边框A2:594mmx×420mm±0.4mm:内遇框4K:532mm×388mm±0.4mm4.15.2测试版A3边柜
外边框A3:420mmx297mm±0.4mm内边样8K:388mmx266mm±0.4mm4.16套印十字线
JB/T10455—2004
套印十字线应平直、光滑,长度不小于20mm,宽度为0.1mm,4.17垂直、水平起始线区
垂直、水平起始线位于测试版内边框四角处,尺寸为15mm。4.18外观质量
4.18.1测试版表面应平整,无划痕、无折痕、无脏点等缺陷。测试版中的网线应均、网点结实、网点边缘光洁。4.18.2
4.18.3片基底灰要求≥0.06,
5试验方法
5.1用10倍的读数放大镜检查4.1、4.8、4.10、4.18.2。5.2用读数显微镜检查4.3、4.7、4.105.3用透射密度计检查4.5、4.9、4.18.3,方法按GB/T10073—1996。5.4用游标卡尺等检查4.7、4.15。5,5
目视检查其他各项。
B标志、包装、运输、贮存
6.1每张测试版应附带使用说明。6.2测试版包装时应平整放置,每两张印版图案面相对,用张中性纸隔开,外包防潮纸,并避免皱折,划伤及变形。
6.3测试版采用硬质包装材料保护运输。6.4测试版应贮存于环境温度为5℃--35℃,空气相对湿度低于70%,无腾蚀性气体,避光的室内环境中。
A.1用途
附录A
(规范性附录)
胶印机测试版使用说明
IB/ 10455---2004
本测试版用丁测控小咬兜机的印品质量和控制晒氧化锌版或PS版质量的透射式测试版。通过印品质量检测小胶印机质量,
本测试版适用于以下标谁中印品的全部项目或部分项目的检测:JB/T 8267
JB/T 6426
JB/T 6529—1992
JB/7 9112-1999
JB/[ 5431991
JB/T 9124—1999
JB/T 9I17-—1999
JB/T 5433—[991
JB/T 9I13—1999
JB/T 6934—1993
A.2结构组成
见图和图3
A.3控制范围
A.3.1幅面尺寸
办公机械小胶印机
平版凸版两用印刷机
平压平凸版印刷机
单张纸压圆凸版印刷机
卷简塑料薄膜凹版印刷机
平面丝网印刷机
金属板胶印机
金属板平台胶印机
平板胶印打样机
移印机
A.3.1.1测试版A2边框:
外边辑A2:S94mm×420mm:
内边框4K:532mmx388mm。
A.3.1.2测试版A3边框
外边框A3:420x29nm:
内边8K:388mmx266mm
本测试版还可以按胶印机实际印刷幅面进行裁切,适用于最大印刷幅面不大于A2或A3尺寸的胶印机使用:
A.3.2网点区
用于检测印品的均匀性,并观察网点的变形情况,A.3.3分辨力区
用以检溯印品的分群力
A.3.4标志国像
用以检查印品的直观综合效果,A.3.5尺标
用以捡查图像畸变和印位精度。A.3.6网点梯尺
用以检查印品层次的在现性及控制晒氧化锌版或PS版的曝光量。A.3.7实心围
用以捡查印品密度和密度不均匀性,A.3.8小网点覆盖率区
小提示:此标准内容仅展示完整标准里的部分截取内容,若需要完整标准请到上方自行免费下载完整标准文档。