首页 > 机械行业标准(JB) > JB/T 6352-1992 加工石材用菱苦土磨石
JB/T 6352-1992

基本信息

标准号: JB/T 6352-1992

中文名称:加工石材用菱苦土磨石

标准类别:机械行业标准(JB)

标准状态:已作废

发布日期:1992-07-01

实施日期:1993-01-01

作废日期:2007-05-01

出版语种:简体中文

下载格式:.rar.pdf

下载大小:201743

相关标签: 加工 石材

标准分类号

中标分类号:机械>>工艺装备>>J43磨料与磨具

关联标准

替代情况:被JB/T 6352-2006代替

出版信息

出版社:机械工业出版社

页数:18 页

标准价格:18.0 元

出版日期:1993-01-01

相关单位信息

归口单位:郑州磨料磨具磨削研究所

发布部门:郑州磨料磨具磨削所

标准简介

本标准规定了加工石材用菱苦土磨石的产品分类、技术要求、试验方法、检验规则及标志、包装、运输和贮存。 JB/T 6352-1992 加工石材用菱苦土磨石 JB/T6352-1992 标准下载解压密码:www.bzxz.net

标准图片预览

JB/T 6352-1992 加工石材用菱苦土磨石
JB/T 6352-1992 加工石材用菱苦土磨石
JB/T 6352-1992 加工石材用菱苦土磨石
JB/T 6352-1992 加工石材用菱苦土磨石
JB/T 6352-1992 加工石材用菱苦土磨石

标准内容

中华人民共和国机械行业标准
加工石材用菱苦土磨石
1 主题内容与适用范围
JB/T6352
本标准规定了加工石材用菱苦土磨石的产品分类、技术要求、试验方法、检验规则及标志、包装、运输和贮存。
本标准适用于加工大理石、花岗石、水磨石用的菱苦土结合剂磨石。2
引用标准
GB 2476
GB 2477
GB2484
GB2490
GB 2828
GB9202
3代号
磨料代号
磨料粒度及其组成
磨具代号
喷砂硬度机检验磨具硬度的方法逐批检查计数抽样程序及抽样表(适用于连续批的检查)磨具的检验方法
3.1磨石采用的磨料名称代号应符合GB2476的规定。3.2磨石采用的磨料粒度号应符合GB2477的规定。3.3
磨石采用的菱苦上结合剂和硬度代号应符合GB2484的规定。4产品分类
磨石的型式与代号见表1。
圆形装卡·号磨石
圆形装卡二号磨石
圆形装卡三号磨石
圆形无装卡磨石
梯形装卡-号磨石
梯形装卡二号磨石
梯形装卡三号磨石
梯形装卡四号磨石
梯形无装卡磨石
中华人民共和国机械电子工业部1992-07-01批准456
规格尺寸书写方法
LXHXBXB
LXHXBXB
LXHXBXBI
LXHXBXB,
1993-01-01实施
4.2磨石的型式与规格尺寸
JB/T6352—92
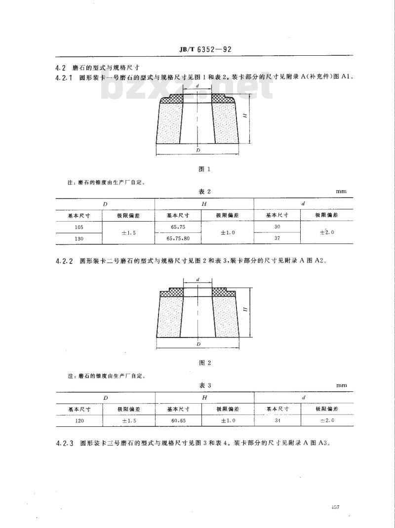
4.2.1圆形装卡一号磨石的型式与规格尺寸见图1和表2。装卡部分的尺寸见附录A(补充件)图A1。X
注:磨石的锥度由生产厂自定。表2
基本尺寸
极限偏差
基本尺寸
极限偏差
基本尺寸
极限偏差
圆形装卡二号磨石的型式与规格尺寸见图2和表3,装卡部分的尺寸见附录A图A2。4
注;磨石的锥度由生产厂自定。表3
基本尺寸
极限偏差
基本尺寸
极限偏差
基本尺寸
极限偏差
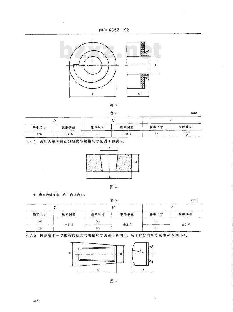
3圆形装卡三号磨石的型式与规格尺寸见图3和表4。装卡部分的尺寸见附录A图A3。4.2.3
基本尺寸
极限偏差
JB/T6352—92
基本尺寸
极限偏差
4.2.4圆形无装卡磨石的型式与规格尺寸见图4和表5。a
注:磨石的锥度由生产厂自己确定。表5
基本尺寸
极限偏差
基本尺寸
极限偏差
基本尺寸
基本尺寸
极限偏差
极限偏差
4.2.5梯形装卡一号磨石的型式与规格尺寸见图5和表6。装卡部分的尺寸见附录A图A4。H
基本尺寸
极限偏差
基本尺寸
极限偏差
JB/T 635292
基本尺寸
极限偏差
基本尺寸
极限偏差
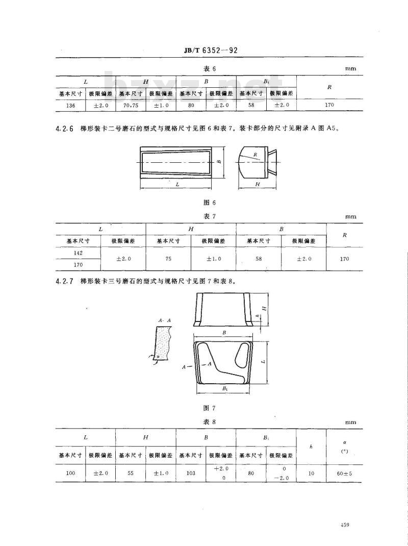
4.2.6梯形装卡二号磨石的型式与规格尺寸见图6和表7。装卡部分的尺寸见附录A图A5。R
基本尺寸
极限偏差
基本尺寸
极限偏差
4.2.7梯形装卡三号磨石的型式与规格尺寸见图7和表8。B
基本尺寸
极限偏差
基本尺寸
极限偏差
基本尺寸
极限偏差
基本尺寸
基本尺寸
极限偏差
极限偏差
JB/T6352—92
4.2.8梯形装卡四号磨石的型式与规格尺寸见图8和表9。装卡部分的尺寸见附录A图A6。L
基本尺寸
极限偏差
基本尺寸
极限偏差
基本尺寸
梯形无装卡磨石的型式与规格尺寸见图9和表10。4.2.9
基本尺寸
极限偏差
基本尺寸
极限偏差
极限偏差
基本尺寸
基本尺寸
极限偏差
极限偏差
基本尺小
极限偏差
4.2.10标记示例
磨石的标记内容按下列顺序书写:JB/T 6352--92
型式规格磨料粒度
结合剂
标记示例:
Y1 ~ 130 X 80 X 37
5技术要求
5.1磨石不应有贯穿裂纹。
5.2磨石不应混有铁屑、砂石等杂物。5.3磨石表面气孔尺寸应不大于7mm。5.4磨石边棱损坏
结合剂
-粒度
规格(D X H×d)
圆形磨石沿径向损坏的尺寸不大于5mm,沿厚度方向损坏的尺寸不大于7mm,沿周长损坏的尺寸不大于10mm;
梯形磨石沿周边和高度方向损坏的尺寸不大于0.1H。磨石尺寸的极限偏差应符合表2至表10的规定。5.5
磨石的形位公差应符合表11的规定。表11wwW.bzxz.Net
磨石种类
圆形磨石
梯形磨石
平行度
平面度
磨石的硬度等级与硬度值应符合附录B(补充件)表B1的规定。5.8带有装卡部分的磨石其结合部位不得松动。同轴度
5.9磨石装卡部分的尺寸应与磨机装卡部分的尺寸配套,其装卡尺寸应符合附录A图A1~图A6的规定。
6试验方法
6.1磨石的基本尺寸、极限偏差、形位公差的检测应符合GB9202的规定。附录A中磨石装卡部分结构尺寸采用分度值为0.05mm游标卡尺和万能角度尺检测。6.2表8中梯形装卡三号磨石的基本尺寸B、B、h和角度α采用标准样板检测。6.3磨石硬度的测试方法应符合GB2490的规定。161
7检验规则
JB/T6352—92
7.1磨石出厂或交收检验应按表12中规定的检查项目进行抽样检验。7.2抽样方案采用GB2828规定的一次正常抽样方案,各检查项目的检查水平和合格质量水平应符合表12规定。
检查项目
检查水平
质量水平
标志、包装、运输和购存
8.1磨石的标志
8.1.1产品表面标志内容包括:
磨料粒度或使用序号;
注;使用序号是指磨石按磨料粒度从粗至细而编的号码。b.
硬度;
生产日期。
包装标志内容包括:
制造厂名;
商标;
磨石型号、规格,
磨料粒度或使用序号;
数量;
“防潮”字样或标志。
包装箱应坚实、可靠,并符合运输部门的有关规定。8.3包装箱内应附有产品合格证。8.4运输过程中应注意防止碰撞。8.5磨石应存放在干燥通风处。
5.1条,5.8条
JB/T6352—92
附录A
磨石装卡部分结构尺寸筒图
(补充件)
A1圆形装卡号磨石装卡部分的尺寸见图A1。(120)
(4100)
(128)
JB/T6352—92
圆形装卡二号磨石装卡部分的尺寸见图A2。A2
/ 6 -p19 +9: 5
JB/T6352—92
A3圆形装卡三号磨石装卡部分的尺寸见图A3。AA
70°±30
JB/T6352—92
A4梯形装卡一号磨石装卡部分的尺寸见图A4。4°±1°
1°30°±30'
JB/T6352-92
梯形装卡二号磨石装卡部分的简图见图A5,其中L的尺寸可为142mm、170mm。A5
4°±1°
1°30°±30
A6梯形装卡四号磨石装卡部分的尺寸见图A6。2
1°30'±30
附录B
15°30
磨石的硬度等级与硬度值
(补充件)
磨石的硬度等级与硬度值见表B1。(6
小提示:此标准内容仅展示完整标准里的部分截取内容,若需要完整标准请到上方自行免费下载完整标准文档。