首页 > 电子行业标准(SJ) > SJ/T 10158-1991 组合散热器
SJ/T 10158-1991

基本信息

标准号: SJ/T 10158-1991

中文名称:组合散热器

标准类别:电子行业标准(SJ)

标准状态:现行

发布日期:1991-04-01

实施日期:1991-07-01

出版语种:简体中文

下载格式:.rar.pdf

下载大小:167017

相关标签: 组合 散热器

标准分类号

中标分类号:机械>>机械综合>>J01技术管理

关联标准

出版信息

页数:11页

标准价格:15.0 元

相关单位信息

标准简介

SJ/T 10158-1991 组合散热器 SJ/T10158-1991 标准下载解压密码:www.bzxz.net

标准图片预览

SJ/T 10158-1991 组合散热器
SJ/T 10158-1991 组合散热器
SJ/T 10158-1991 组合散热器
SJ/T 10158-1991 组合散热器
SJ/T 10158-1991 组合散热器

标准内容

中华人民共和国电子工业行业标准SJ/T1015B --91
组合散热器
1991-04-01发布
1991-07-01 实施
中华人民共和国机械电子工业部发布中华人民共和国电子工业行业标准组合散热器
1主阅内客与适用范图
1.1卡题内容
$3/T 10158---31
本标难见案了组合微热器(以下商称“改燃器“的结式品种质作,技要求,试验方法利检验规购
1.2送用范相
本标准适用于多个半导你避件强迫风冷用的热器,2 引用标准
GB1804
GR 2903
GB 7423. 1
S 1267
572242
3特号
包装诺运图示标志
形状和位置公整木注公差的观定公差与配合未注公差尺寸的圾裂茎制·-束调热电调丝及分安表
蚂及铝合金加工产品的化学分
半学体器件热器通用技术承作
半导体器件用散热器在自然空气格比状态下的然用测试金属键晟和化学处卵层玩量检验游收规散热器强追风冷热组测试方法
T,—微热片最高温度点的温度,:F.
环境组度,心!
散热片摄升.:
P,一半导体器的耗功率,
Q.一\中气你流量m/:
装有胶提器的测试落进出口处空气静下,Pa:光胶热器时测试装置出口处空气静压,Pa!散热器压力损(沈阻,Pal
散热片素压,C/W:
单元双!
微热片断函报状代号,
中华人民共和国机械电子工业部1991-04-01批箱1991-C7-C1安施
SF:T1015891
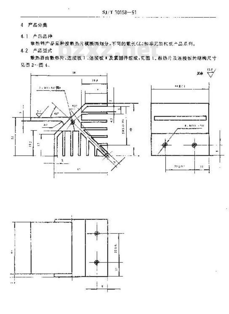
4产品分类
4. 1 产品品种
SJ/T10158—S
然释产品种按片横断划分,不司的载长和单效代成产品系列。1.2产品型式
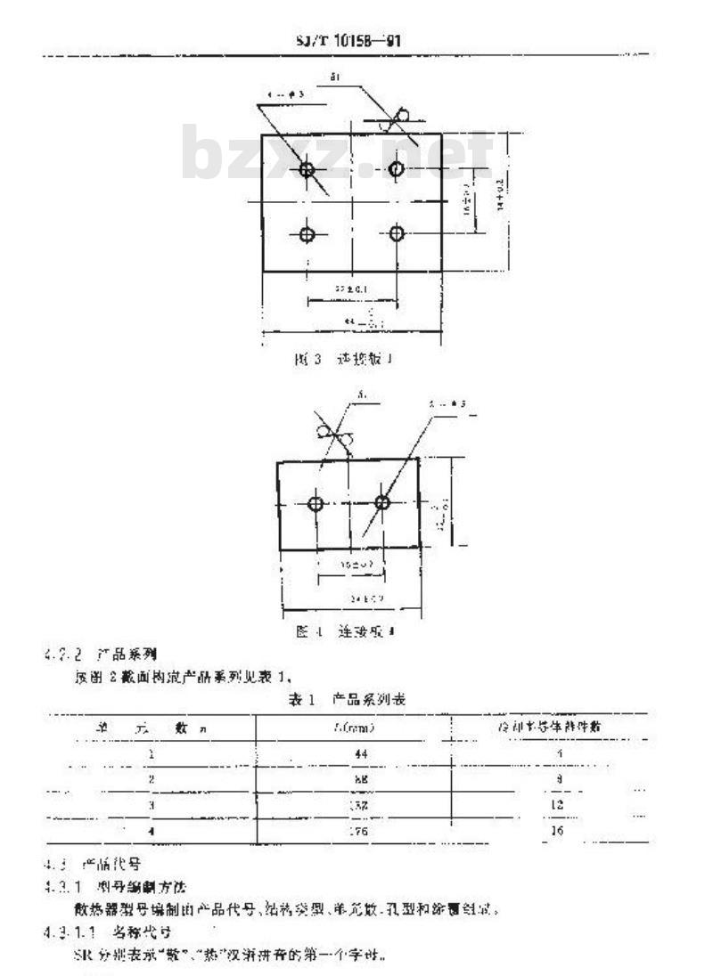
热器由触热片、连热板」,连换极!及象围件组成,见图1,做热片及逆接披的结构尺寸见图2~.国4.
4.2.2产品系列
按谢2截面均获产品系列见表1,SJ/T10158—91
随3违换板」
医连!
资产品系列表
4产品代号
1.3.1型编制方法
散热器型号端制自产品代号、站格类型、单充孔型和涂通组减,4.3.1.1多称光号
表前“警”“热“没游讲的第一个字h
4.3.1.结构类刷
SJ/T:1G153--91
21分别示“组\,会“假语进百的第一个学单A 表示数热片横断血A 型。
4.3.1.3单元数
单元数分别肝1.2-···-专采。4.3.1.4孔型
展熟片上安装群件的孔必代号见图5所示。4.3.2标记示例
用A型散热片组成2单元敏热器,开F,孔型,傲熟器装面过行电化学氧化后若黑色标记为:
5植术要求
5.7使期性能
5.1.1散热片的温升应合图6的规定,a1,
散热升温升曲线
SJ/T1015891
5.1.2散热片的态阻应符合图7的规定、t,snr
图散热热阻线
5.1.3故热舒的压力损失度符图8的规定..i.n
四4元
医8散热疆压力失曲线
5.2加工要求
5.2.1散热片,连接板1邓连度板!尺亏公差适符合图2~图4的规定.未注公差尺寸按GB 1804的规定取I14级。
SJ/T10158--91
5.2.2散热片,连接板1和连接板1的末计形状位留公按(:31184两规定,其中良续度、平而度、间轴度和对称度取(级。5.2.3数热连接板【和速接板1的表剂检应符:2-!4件定,5.2.4散热器应再合图1的规定.
5. 3外观要求
散热器表面应无明显的划衰、燃蚀,裂纹及追刺等缺陷。5.4材料曼求
敬热片的材料用L6,连接1和连接板用铝检LY:2-%共伤学战分应符合GH3190第1章的规定,
5.5丧面处理要求
散熟片,连接板【和连接板1进行电化学氧化后着黑位处理玩出间“走出要求。6试验方法
6.1测试仅器些设务
6.1.1测温仅静和测法车号
测扭收器和测率仪器获S71257食累状的速试改选选同:6.1.2风量、压测试牌
6.1.2.1补偿式龄出计一
6.1.2.2风量、风压烟试装世
6.2德试连接图
微试连接图见图所示,
图9测试连搭图
&·香
海量i
6.3式验程
SJ/T 10158--91
6.3.1将等件安双在散热片上,安装时应保话游件上敏热磷按触:m紧学接触接面可途学势质,
E.3.2测试电原理图虑符合5J2213第2.1条的现定.3.3散热片的最高温度点的位置应符合S1243第4.条的放定,6.34环境盘度点T,在进比方问能微热器89:1.11处.6.3.5特第)个单元的半导体器件分券调到不同功率点上,例划15W,15W、20W、25W改变风量分别测出各散热片的相度T坏境温度.P6.3.6无收热器条作下,按6.3.5条测出各流量下的F,值6.3.了2单元,3单元、1单元的试按5.3.5第和5.3.6条进行,6.1整据处理
6.4.1按下式计算出教熟片的盘升:AT-T -T.
6.4.2按下支计算出散热片的热
6.4.3按下式计前出压力披失r
5.4.4会出散热片的摄升(4。:.)的曲线图,并符合5.].【来图5性浅。5.4.5绘出热片的热随(R—Q2.>典图.并符=.1.2兼图?典线:6.4.6禁出数热器压力报尖(4月—Q.)南线图并符合5.1.3柔图8业浅6.5满尼精度要求的量其检验零件尺专公卷、形和位置公举及书而相精度,分别达判5.2.2~5.2. 3条的要求,
6.6外观用日测法检验
6-下表衡处理按1279第7章的规定进行检险6.8:材料按G31的第单的规定进行抢,了抢验规雕
检整规则接GA7423.1第5的规宝.8标,包差、贮存
8.1标志
.1.1收发货标求
包装材料外表上应有如下收发货标志,产品分类概示标1记;
h品告规格:
数量,
d.总质量
生产月期
F,收货越址和单位:
社货单忙!
b,发运件数,
8.1.2包费储运图示标起
SJ门10158—91
包装龄运图示标志搭6自191规定、8.2包装
散热器应单个差入型料塑内。包软箱采用木箱或纸拓,包装精与做热器之间望螺冲填料。包装箱中应有下列文件,
产品合格证:bzxz.net
b.产品说明书
装箱单,
8. 3 贮存
在需董,者叠条件下的性虑内上存,附加说明:
市标维中华人民共所国社教中子工业部务本标准由机模电子?业部第:上九研究新、机抵电子工业部电予标准化所负资起草。本标准土要起单人,士使石,相克会,二般课、尊建。
小提示:此标准内容仅展示完整标准里的部分截取内容,若需要完整标准请到上方自行免费下载完整标准文档。