首页 > 煤炭行业标准(MT) > MT 330-1993 XG XC系列立井大型多绳箕斗卸载设备基本参数
MT 330-1993

基本信息

标准号: MT 330-1993

中文名称:XG XC系列立井大型多绳箕斗卸载设备基本参数

标准类别:煤炭行业标准(MT)

标准状态:现行

发布日期:1993-02-25

实施日期:1993-10-01

出版语种:简体中文

下载格式:.rar.pdf

下载大小:100041

相关标签: 立井 多绳 设备 基本参数

标准分类号

中标分类号:矿业>>矿山机械设备>>D93提升、贮运设备

关联标准

出版信息

出版社:中国煤炭工业出版社

页数:6页

标准价格:8.0 元

出版日期:1993-10-01

相关单位信息

起草人:罗广群、方昌寿.

起草单位:兖州煤矿设计研究院

归口单位:能源部煤矿专用设备标准化技术委员会矿井提运设施分会

提出单位:中国统配煤矿总公司基建局

发布部门:中华人民共和国能源部

标准简介

本标准规定了XG,XC系列立井大型多绳箕斗卸载设备(以下简称“卸载设备”)的型式、基本参数和主要尺寸。本标准适用于外动力开闭箕斗闸门的卸载设备,与JG,JC系列立井大型多绳箕斗配套使用。 MT 330-1993 XG XC系列立井大型多绳箕斗卸载设备基本参数 MT330-1993 标准下载解压密码:www.bzxz.net

标准图片预览

MT 330-1993 XG XC系列立井大型多绳箕斗卸载设备基本参数
MT 330-1993 XG XC系列立井大型多绳箕斗卸载设备基本参数
MT 330-1993 XG XC系列立井大型多绳箕斗卸载设备基本参数
MT 330-1993 XG XC系列立井大型多绳箕斗卸载设备基本参数
MT 330-1993 XG XC系列立井大型多绳箕斗卸载设备基本参数

标准内容

中华人民共和国煤炭行业标准
XG、XC系列
立井大型多绳箕斗卸载设备基本参数1主题内容与适用范围
MT330--93
本标准规定了XG、XC系列立井大型多绳箕斗卸载设备(以下简称“卸载设备”)的型式、基本参数和主要尺寸。
本标准适用于外动力开闭箕斗闸门的卸载设备,与JG、JC系列立井大型多绳箕斗配套使用。2引用标准
MT328JG系列立井大型多绳箕斗基本参数MT329JC系列立井大型多绳箕斗基本参数MT/T154.1煤矿机电产品型号的编制导则和管理办法3术语
3.1舌板:用于井口受煤仓与箕斗阑门卸载口间的活动溜煤板。3.2闸门开闭机构:打开、关闭箕斗闸门的装置。4产品分类
4.1型式
4.1.1卸载设备由闸门开闭机构和受煤活动舌板组成。4.1.2闸门开闭机构分水平移动式和上提抓捕式两种,每种开闭机构均对应有专用的活动舌板。水平移动式(XG系列)适用于JG系列箕斗,上提抓捕式(XC系列)适用于JG系列箕斗。4.2基本参数和主要尺寸
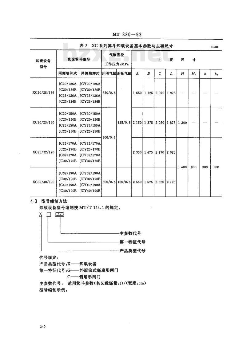
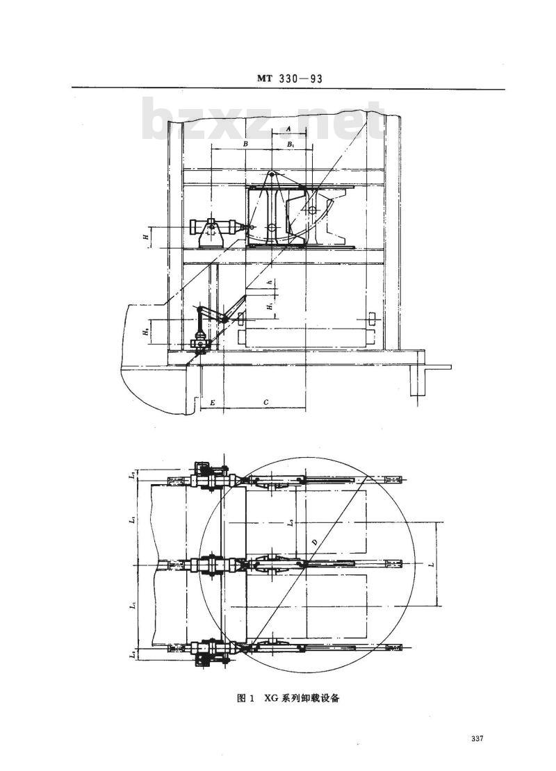
卸载设备的基本参数和主要尺寸应符合图1、图2和表1、表2的规定。中华人民共和国能源部1993-02-25批准336
1993-10-01实施
MT330—93
图1XG系列卸载设备
卸载设备
XG20/25/150
XG25/32/170
XG32/190
XG40/50/190
XG40/50/210
MT 330-—93
表1XG系列箕斗卸载设备基本参数与主要尺寸气缸直径
配套箕斗型号
同侧装卸式
工作压力,MPa
异侧装卸式开闭气缸活板气缸
JG20/150AJGY20/150A
JG20/150BJGY20/150B
JG25/150AJGY25/150A此内容来自标准下载网
JG25/150BJGY25/150B
JG25/170A |JGY25/170A|320/0.6JG25/170BJGY25/170B
JG32/170AJGY32/170A
JG32/170BJGY32/170B
JG32/190AJGY32/190Al
JGY32/190B
JG32/190B
JG40/190AJGY40/190A
JG40/190B
JGY40/190B
JG50/190AJGY50/190A
JG50/190BJGY50/190B
JG40/210AJGY40/210A
JG40/210BJGY40/210B
JGY50/210A
JG50/210A
JG50/210BJGY50/210B
800 1700122020855000
900175d130022355500
609650500700300
[10001800138023356000
11001850145024856500
21502150
23502350
2550255q
27502750
MT330—93
图2XC系列卸载设备
卸载设备
XC20/25/126
XC20/25/150
XC25/32/170
XC32/40/190
MT 330—-93
表2XC系列箕斗卸载设备基本参数与主要尺寸配套箕斗型号
同侧装卸式
JC20/126A
JC20/126B
JC25/126A
JC25/126B
JC20/150A
JC20/150B
JC25/150A
JC25/150B
气缸直径
工作压力,MPa
异侧装卸式开闭气缸活板气缸
JCY20/126A
JCY20/126B
JCY25/126A
JCY25/126B
JCY20/150A
JCY20/150B
JCY25/150A
JCY25/150B
JC25/170AJJCY25/170A
JC25/170B
JC32/170A
JC32/170B
JC32/190A
JC32/190B
JC40/190A
JC40/190B
4.3型号编制方法
JCY25/170B
JCY32/170A
JCY32/170B
JCY32/190A
JCY32/190B
JCY40/190A
JCY40/190B
20701975
16501125
125/0.621501375
202018751300
23501475
2170/2025
500/0.6160/0.6255015752
23202125
卸载设备型号编制按MT/T154.1的规定。X口
主参数代号
第一特征代号
产品类型代号
代号规定:
产品类型代号.X-卸载设备
第一特征代号:G一外滚轮式底扇形闸门C—--侧扇形闸门
主参数代号:适用箕斗参数(名义载煤量,t)/(宽度,cm)型号编制示例:
20/25/170
附加说明:
MT330-93
适用箕斗宽度170cm
-适用箕斗名义载煤量20t或25t
一外滚轮式底扇形闸门
-卸载设备
本标准由中国统配煤矿总公司基建局提出。本标准由能源部煤矿专用设备标准化技术委员会矿井提运设施分会归口。本标准由兖州煤矿设计研究院负责起草。本标准主要起草人罗广群、方昌寿。本标准委托充州煤矿设计研究院负责解释。341
小提示:此标准内容仅展示完整标准里的部分截取内容,若需要完整标准请到上方自行免费下载完整标准文档。