首页 > 电子行业标准(SJ) > SJ/T 211.2-1996 电子工业专用设备设计文件 第2部分:图样的标题栏、附加栏和明细栏
SJ/T 211.2-1996

基本信息

标准号: SJ/T 211.2-1996

中文名称:电子工业专用设备设计文件 第2部分:图样的标题栏、附加栏和明细栏

标准类别:电子行业标准(SJ)

标准状态:现行

发布日期:1996-07-22

实施日期:1996-11-01

出版语种:简体中文

下载格式:.rar.pdf

下载大小:131213

相关标签: 电子 工业 专用设备 设计 文件 图样 附加

标准分类号

中标分类号:医药、卫生、劳动保护>>医药、卫生、劳动保护综合>>C01技术管理

关联标准

替代情况:替代SJ 211-66;

出版信息

页数:6页

标准价格:15.0 元

相关单位信息

标准简介

SJ/T 211.2-1996 电子工业专用设备设计文件 第2部分:图样的标题栏、附加栏和明细栏 SJ/T211.2-1996 标准下载解压密码:www.bzxz.net

标准图片预览

SJ/T 211.2-1996 电子工业专用设备设计文件 第2部分:图样的标题栏、附加栏和明细栏
SJ/T 211.2-1996 电子工业专用设备设计文件 第2部分:图样的标题栏、附加栏和明细栏
SJ/T 211.2-1996 电子工业专用设备设计文件 第2部分:图样的标题栏、附加栏和明细栏
SJ/T 211.2-1996 电子工业专用设备设计文件 第2部分:图样的标题栏、附加栏和明细栏
SJ/T 211.2-1996 电子工业专用设备设计文件 第2部分:图样的标题栏、附加栏和明细栏

标准内容

客案号:71~74—1997
中华人民共和国电子行业标准
SJ/T 211. 1~211.4—1996
电子工业专用设备设计文件
Design documents for specialequipment For elecirnaic indlusry1996-07-22 发布
1996-11-01 实施
中华人民共和国电子工业部
为适应电广1业专用设备计工作的态要,根据电子工业专用设备各研制单位的意见,参有关国外先获标准.国家标准知其他行业标准,对SI21166《无线电工业专用生产设各设!文件的编制规(试行)进行了惨订。接订后的标准以<电子工业专用没备设计文件>为总名称,分成以下6个部分:访1部分印/T21].1);设计文件的完整性:筑2部分(即S/T21.2):图邦的标题栏、游加科知明细栏:第部分【即5J/T211.3):设计文件的格式:英4部分(即S/T211.4):设计文件的编别;第5部分(却SJ/T211.5):设计文计的编号:第6部券(即51/下211.6):设计文件的恶本次发年款准/T 211. 1-S/211.4心了工业专H设备各研制单位的设计义忙,不论其支大内容妇向.都应尽可能按本标准以相司的形式表达、
本标注自电子工或部标准化研究所过口。本标洋起蓝典位:国青西北机器,本标法主要迎炉人:郭继样、葬安定、都萃:中华人民共和国电子行业标渔
电子工业专用设备设计文件
第2部分:图样的标题拦、附加栏和明细栏Design docurients for apecialequipment for electronic industryPart2:Title blocks,additiun list anu item Jist of tnwiny1范围
SJ/T211.21996
代费5211-66
本标准规定了电卡工业专用设备图排的际既烂,附加兰和洲栏的格式与填写内容。念际准道用于电:1.专用设各函样的绘制,2引用标泄
1列标准所色含的条文,道对过在本标准中以用而构成为本标准的条文,本标准出版时,所示版区均为有效,所有标准部全被修订,偿用车标准范各力应探讨使用下列标能最需版本的可能烂。
GB/T14659--93技来区至纸幅西相格式3总则
再张图样上均应有价两和证栏:装配图、路图等图样上让度有明细栏4标题栏
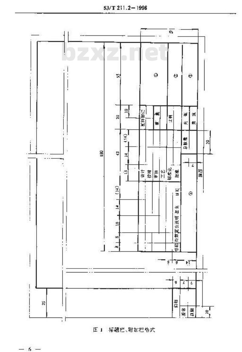
4.1题栏的格式
标题烂均培式见1
4.2标题栏的方位
起题栏的方试拟GB/T14689第4章的规定。4.3标准栏的块写内窄
4.3.1在欠栏内,慎写“品其组成部分的半格,对于产品理应在其名称前面均主型。43.2在龄烂出,按下逆现定瑞写:,对十零件图,有行所压材料的牌号或名称,应符合有关标准的规率;日,对丁需进行后部正加工(或改装的外购标追产品,填了外购标用产品的型号、名称、规格标准综导:
c.对于装配图,此大下道弓:
中华人民共和国电子工业部1996-07-22批准1996-11-01实
SJ/T211.2-1996
小,对于笨州图、装配图以外范其他图栏,如电格图,装箱示意图,填写图样的名称。在密栏内,镇写图婵的代号,应符合有关标准的现定。4.3.3
在の栏内,填写绘图样单位的商标前名殊。4.3.4
在\阅择标记“栏,接下述规定白左向右填写:口,样机试制图样不作标记,此栏不予填写:SJ/T2t1.21996
电辅酒
医」标感栏,时加栏咨式
SJ/T211-2—1996
h.设计定型后、填写小批试制图样标记“A”:c,生产定型后.填写正式生产图样标记“B\。4.36在\更量\栏,填写产品或其组成部分的净重,至量单位应行台国家法定的计母单位的有关挑定。
4.3.7”变\比例\栏,填写轮成基本控图的比例43日在共张“栏,城写同代号图接然总张数。4.3.9在\第张\栏,迪亏同一代号图拌的张突号。4.3.10在\总效罩\栏,块写一台产品所用的总数盛。一白产品只用一件时,此栏省帝填写。4.3.11\设一,“按对”“审核”\下艺\,“标难化\和\批准\各栏统称为”签名区”,该区务挡分出职能人员券多开汁日期。
43.12“标记”,“姓数”“再改说明”、“签名\和”日期\各兰统林为\更改区”,该区栏按下运期定自下而上序填写:
8在\标记”栏,填写烫改标记,更改标记用加刚前小写控了宁母表示,?,@等:,(“处数“栏,填写同一更改录记所表示的更改处数;心,在“更改说明“科,英写刘更改的说期,分别用\打小”“增加”、“别齿“等表示:d、在“禁名”和“口期\栏,由更改人签名并注日期。5附加栏免费标准bzxz.net
5.1μ加停十慢样角和下方创样外,其落式见图1。5.2时则栏的填写内奔么拦:
5.2.1左描周“,出描风名
5.2.2在“凸档\栏,中收图人签名并位寸期5.2.3在\归档\栏的上小,可以白下丽上填写:a:综制详时势考阅的样代号:
,关小图详的随用说明,如被新代督而项图停止使用时,在原函上填写“被××代“其注说明,年工农、模共代专B明细栏
6.1宦绝栏的格
码细栏的塔式分为二种:
格式[适用于装配图、安装函等图详,见多2,a.
h.格式2适用于电路图、按线图等图扫:见图3。—7
6.2明卵栏的位置
SJ/T 211.2-1996
名际及鼠络
涵栏热式!
务修及理号
31山格路式2
6.2.1明细烂位于标题烂的工疗,头格数多少根据需要而定。12
6.2.2当某一图样诊1两张或两张以上图纸上寸、明细栏应改在系一张上。o
6.2.3当在标随上方配明征栏有例难时,无详将明细拦价为软拌的续炎单独编制6.3防细栏的境与规则
6.3.1明细差一照应自下而上效,单独将制对应户上两下适写。6.3.2期细中务部分之应谢品两行以上的实。6.4调细栏格式「的坑与内容
6、4.1在\序专“栏,而图十各组表部分争序学。6..2在\代专“栏,项图样中各或部分款图样号或标准缩号,6.4.3在“名窃及规折\,探与图样中组成部分的称,必费时还应块写其型利尽寸划格
在“材料”烂,消行国择点各纵患部会的替料牌节或名依,应益合有差标阵的款定6.4.4
6.4.5在数量\栏,一般泛填写所需牛数或个整.芯出用其他单位,还应块写单位符号或名称。
6.4.6个“江\栏,根星需要镇件下内案7一源厂场:“我离
*x ×#\
“循界\
d,“荫件“或“备非x个“;
c“外购\或守产厂;
振要和化学处非.颜危管:
5./T211.2—1986
仍、使用说明,与“试用”、“安随用\等,h.其他。
6.5期细忙格式2的填写内容
6.5.1存\序号\性(序写阿拉数字。6.5.2在“代专\栏,行图举各组戚邮分的项目代号。6.5.在“名新及而\栏培与因样中各组成能分的多称及耐号。6.5.4“规格“栏.站写函样中各组量部分款观挤。6.5.5“数最“我~注\栏的填写同勺.4.5利6.4.0
小提示:此标准内容仅展示完整标准里的部分截取内容,若需要完整标准请到上方自行免费下载完整标准文档。