首页 > 国家标准(GB) > GB/T 23321-2009 纺织品 防水性 水平喷射淋雨试验
GB/T 23321-2009

基本信息

标准号: GB/T 23321-2009

中文名称:纺织品 防水性 水平喷射淋雨试验

标准类别:国家标准(GB)

标准状态:现行

发布日期:2009-03-19

出版语种:简体中文

下载格式:.rar .pdf

下载大小:2282656

相关标签: 纺织品 防水 水平 喷射 淋雨 试验

标准分类号

标准ICS号:纺织和皮革技术>>纺织产品>>59.080.30纺织物

中标分类号:纺织>>纺织综合>>W04基础标准与通用方法

关联标准

采标情况:MOD ISO 22958:2005

出版信息

出版社:中国标准出版社

书号:155066·1-37207

页数:8页

标准价格:14.0 元

计划单号:20074089-T-608

出版日期:2009-06-01

相关单位信息

首发日期:2009-03-19

起草人:王欢

起草单位:中纺标(北京)检验认证中心有限公司、国家纺织制品质量监督检验中心

提出单位:中国纺织工业协会

发布部门:中华人民共和国国家质量监督检验检疫总局 中国国家标准化管理委员会

主管部门:中国纺织工业协会

标准简介

本标准规定了测定织物抵抗一定冲击强度喷淋水渗透性的方法,通过测量织物抵抗喷淋水的渗透性来预测其抗雨水的渗透性能。本方法也可在不同冲击强度的喷淋水作用下对织物进行测试,并绘制完整的织物抗渗透性曲线。本标准适用于各种经过及未经过防水(或拒水)后整理的纺织织物,特别适用于具有较强防水性能的织物。 GB/T 23321-2009 纺织品 防水性 水平喷射淋雨试验 GB/T23321-2009 标准下载解压密码:www.bzxz.net

标准图片预览

GB/T 23321-2009 纺织品 防水性 水平喷射淋雨试验
GB/T 23321-2009 纺织品 防水性 水平喷射淋雨试验
GB/T 23321-2009 纺织品 防水性 水平喷射淋雨试验
GB/T 23321-2009 纺织品 防水性 水平喷射淋雨试验
GB/T 23321-2009 纺织品 防水性 水平喷射淋雨试验

标准内容

ICS59.080.30
中华人民共和国国家标准
GB/T23321—2009
纺织品
防水性
水平喷射淋雨试验
Textiles-Water resistance-Rain tests: exposure to ahorizontal water spray
(ISO22958:2005,Textiles--WaterresistanceRain tests:exposuretoahorizontalwaterspray,MOD)
2009-03-19发布
中华人民共和国国家质量监督检验检疫总局中国国家标准化管理委员会
2010-01-01实施
中华人民共和
国家标准
纺织品
防水性水平喷射淋雨试验
GB/T23321—2009
中国标准出版社出版发行
北京复兴门外三里河北街16号
邮政编码:100045
网址www.spc.net.cn
电话:68523946
668517548
中国标准出版社秦皇岛印刷厂印刷各地新华书店经销
开本880×12301/16
印张0.5
字数9千字
2009年6月第一版
反2009年6月第一次印刷
书号:1550661-37207
7定价14.00元
告由本社发行中心调换
如有印装差错
版权专有侵权必究
举报电话:(010)68533533
GB/T23321—2009
本标准修改采用ISO22958:2005《纺织品防水性主水平喷射淋雨试验》(英文版)。本标推与ISO22958:2005相比有如下差异:一删除了国际标准的前言;
规范性引用文件中由我国标准代替了国际标准;—增加了6.1和6.2的注;
-6.3中水温由(27±1)℃修改为(27士2)℃;一删除了国际标准的图1,原来的图2和图3调整为图1和图2。本标准由中国纺织工业协会提出。本标准由全国纺织品标准化技术委员会基础标准分会(SAC/TC209/SC1)归口。本标准起草单位:中纺标(北京)检验认证中心有限公司、国家纺织制品质量监督检验中心。本标准主要起草人:王欢。
1范围
纺织品
防水性水平喷射淋雨试验
GB/T23321-—2009
本标准规定了测定织物抵抗一定冲击强度喷淋水渗透性的方法,通过测量织物抵抗喷淋水的渗透性来预测其抗雨水的渗透性能。本方法也可在不同冲击强度的喷淋水作用下对织物进行测试,并绘制完整的织物抗渗透性曲线。
本标准适用于各种经过及未经过防水(或拒水)后整理的纺织织物,特别适用于具有较强防水性能的织物。
2规范性引用文件
下列文件中的条款通过本标准的引用而成为本标准的条款。凡是注日期的引用文件,其随后所有的修改单(不包括键误的内容)或修订版均不适用于本标准,然而,鼓励根据本标准达成协议的各方研究是否可使用这些文性的最新版本。凡是不注日期的引用文件,其最新版本适用于本标准。GB/T6529
3术语和定义
下列术语和
防水性
纺织品调湿和试验用标准大气(GBXT6529--2008,ISO139:2005,MOD)(适用于本标准
waterresistance
织物抵抗被水润湿和渗透的性能。原理
将背面附有吸水纸质量已知)的试样在规定条件下用水喷淋5min,然后重新称量吸水纸的质量,通过吸水纸质量的增加来测定试验过程中渗过试样的水的质量。5安全防范
试验人员应避循实验室安圣操作规范,并在实验室区域佩戴安全防护眼镜。注:安全防范只是起到提醒试验人员的目的,并未指出所有可能的安会间题。使用者有责任采取适当的安全和健康措施。
6仪器
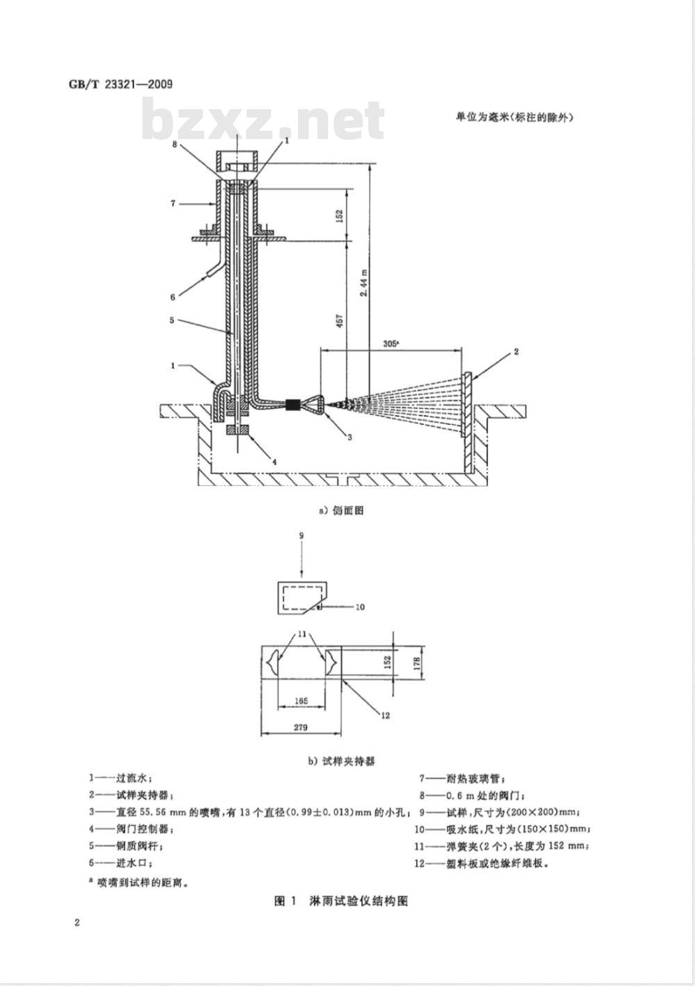
6.1淋雨试验仪(见图1和图2),典型压力水头的量程是从610mm到1830mm。注:如果能够得到相同的试验结果,可以使用其他等效试验仪。1
GB/T23321—2009
1-—过流水;
一试样夹持器:
a)侧面图
b)试样央持器
单位为宽米(标注的除外)
7——耐热玻璃管;
一直径55.56mm的喷嘴,有13个直径(0.99±0.013)mm的小孔;9-阀门控制器;
一铜质阀杆;
6--——进水口;
a喷嘴到试样的距商。
图1淋雨试验仪结构图
-0.6m处的阀门;
一试样,尺寸为(200×200)mm;一吸水纸,尺寸为(150×150)mm;11—-弹赞夹(2个),长度为152mm;12——塑料板或绝缘纤维板。
GB/T23321—2009
单位为毫米
1--*厚度为0.79mm、中间有一个小孔的圆盘,阅盘上直径为18.26mm的圆周上有6个小孔,直径为32.54mm的圆周上也有6个小孔,圆盘固定在试验仪上。2-13个小孔,电镀后直径为(0.99士0.013)mm。后整理:阳极氧化。
材料:铝。
a此处直径为12.78mm。
b圆锥形。
图2喷嘴结构
6.2白色吸水纸,厚度约为0.7mm,质量约为(385士4.5)g/m2,吸收量为(200±30)%。注:如果能够得到相同的试验结果,可以使用其他等效产品。6.3试验用水,温度为(27土2)℃或(20士2)℃,水的硬度和pH值应记录在试验报告里。6.4天平,精度为0.1g。
7试样
从测试织物上裁取至少3块试样,每块试样的尺寸约为(200×200)mm。按照GB/T6529中规定调湿试样和吸水纸至少4h。经相关方同意,调湿也可以在一般大气环境中进行。8步骤
8.1将吸水纸贴合在试样背面,夹持在试样夹持器上,吸水纸的尺寸为(150×150)mm,并经过称量,称量精度为0.1g。试样夹持器固定在垂直的刚性支架上,使试样位于正对喷口面且距喷口面305mm的位暨。免费标准bzxz.net
8.2在规定的压力水头下,将试验用水定向的对着试样持续水平喷淋5min。注:通常情况下,根据测试产品的种类协商确定一个压力水头。但是,如9.2中描述,可以应用不同的压力水头来获得织物完整的抗渗透性曲线。8.3喷淋结束后,小心地取下吸水纸并立即称量,精确到0.1g。8.4试样数量在很大程度上依据想要得到的试验结果的精度而定,但在任何情况下试样的数量都不应少于3块。
GB/T23321—2009
9结果计算
9.1以5min试验过程中吸水纸质量的增加量作为水的渗透值,计算至少3块试样的平均值。试样的测试结果平均值或单个试样的测定值超过5g的简记为“5十g”或“>5g”。9.2根据不同压力水头下测得的平均渗透值可以绘制试样抗渗透性的完整曲线。通过增大压力水头值(从610mm起,以305mm为一档依次增加)测得:a)
没有渗透现象发生时的最大压力水头;随着压力水头的增加,织物的渗水性发生改变;b)
发生“穿透”现象时的最小压力水头,也就是渗透水超过5g时的压力水头。在每一个压力水头下至少测试3块试样,计算在该压力水头下的平均渗透值。10试验报告
试验报告应包括以下内容:
本标准的编号,即GB/T233912009;测试试样的数量;
样品描述;
调湿与试验用的大气条件;
试验用水的温度、硬度和pH值;任何偏离本标准的细节;
试验结果。
版权专有侵权必究
书号:155066·1-37207
GB/T23321-2009
打印日期:2009年8月7H
定价:
小提示:此标准内容仅展示完整标准里的部分截取内容,若需要完整标准请到上方自行免费下载完整标准文档。