首页 > 国家标准(GB) > GB/T 1581-1979 米制锥螺纹量规
GB/T 1581-1979

基本信息

标准号: GB/T 1581-1979

中文名称:米制锥螺纹量规

标准类别:国家标准(GB)

标准状态:已作废

发布日期:1979-08-21

实施日期:1980-05-01

作废日期:2005-10-14

出版语种:简体中文

下载格式:.rar.pdf

下载大小:131452

相关标签: 螺纹 量规

标准分类号

标准ICS号:计量学和测量、物理现象>>长度和角度测量>>17.040.30测量仪器仪表

中标分类号:机械>>工艺装备>>J42量具与量仪

关联标准

替代情况:调整为JB/T 10588-2006

出版信息

页数:4

标准价格:8.0 元

相关单位信息

复审日期:2004-10-14

起草单位:成都工具所

归口单位:全国量具量仪标准化技术委员会

发布部门:中国机械工业联合会

主管部门:中国机械工业联合会

标准简介

GB/T 1581-1979 米制锥螺纹量规 GB/T1581-1979 标准下载解压密码:www.bzxz.net

标准图片预览

GB/T 1581-1979 米制锥螺纹量规
GB/T 1581-1979 米制锥螺纹量规
GB/T 1581-1979 米制锥螺纹量规
GB/T 1581-1979 米制锥螺纹量规

标准内容

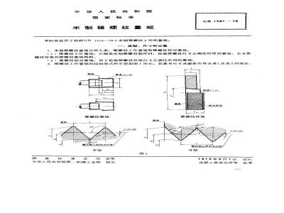
中华人民共和国國
国家标准
米制锥螺纹量规
本标准适用于检验GB1415一78《米制锥螺纹》用的量规。一、类型、尺寸和公差
GB 1581
1.米制锥螺纹量规分两大类:锥螺纹工作量规和锥螺纹校对塞规。(1)锥螺纹工作量规:在制造米制锥螺纹制件时,检验锥螺纹尺寸正确性所用的量规。它有锥螺纹环规和锥螺纹塞规两种。
(2)锥螺纹校对塞规:用于检验锥螺纹环规尺寸正确性所用的塞规2.锥螺纹工作量规的结构型式和牙型如图1所示,其基本尺寸及偏差应符合表1及表2的规定。基面
锥螺纹塞规
螺纹轴心线的平行线
局 发布
维度1:16
维度:16
纲纹滚花
锥螺纹环规
47°24
螺纹轴心线的平行线
中华人民共和国第一机械工业部提出牙型
1979年5月1日
成都工具研究所等
注:(:爆距的测遗应平行于螺纹轴线进行。②,牙型角的乎分线应垂直于嫩纹轴线。螺纹牙底构情形状可为任意的。外径
螺纹代号
公称尺
GB1581-79
摊规基面上直径及偏差
中径d2
内径山
公称尺寸
称偏差
搬损极限
±0.00521.007
10,006
不大于
密规环砚
公栋了bZxz.net
外径d
环规转面上直径及偏差
公称尺寸
内径d;
公称尺寸
环规外
不火于
半角偏器(分
链度偿
不天于
(0牙形半角偏差以两个半角偏差绝对值的算术平均值米确定。注:
2螺醚偏差采指螺纹食长上任意两牙间的距离与公称距离之些。Hai
±18′
±1+12
0.30 / ±10 ±11
GB 1581 ---79
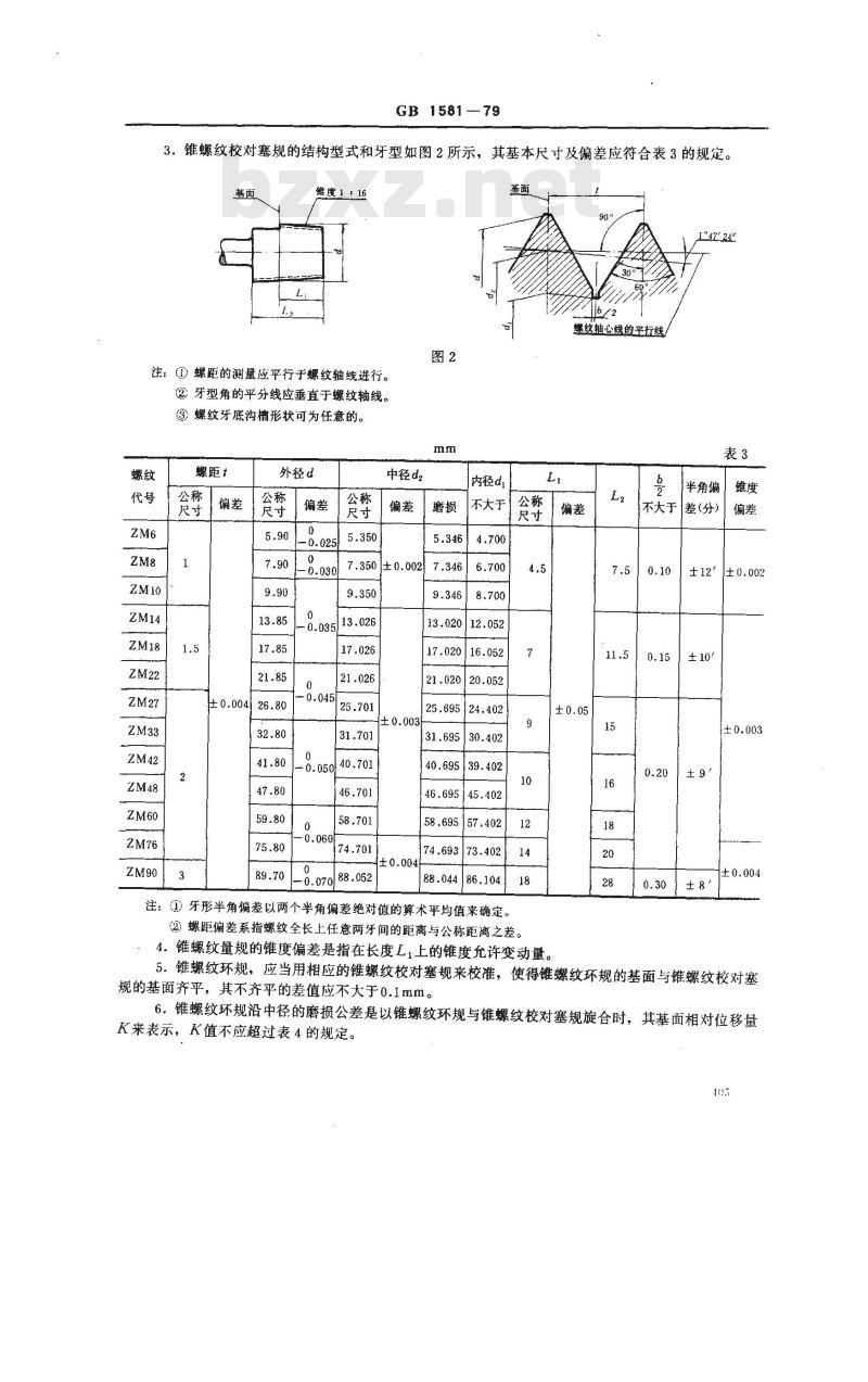
3.锥螺纹校对塞规的结构型式和牙型如图2所示,其基本尺寸及偏差应符合表3的规定。基面
锥度 1 16
注:①螺距的测量应平行于螺纹轴线进行。②牙型角的平分线应垂直于螺纹轴线。③螺纹牙底沟槽形状可为任意的。螺纹
螺距t
外径d
±0.004/26.80
中径d2
7.350±0.002
0.070|88.052
内径di
不大于
爆纹轴心线的平行线
13.02012.052
17.02016.052
21.02020.052
140.69539.402
46.69545.402
58.69557.402
174.69373.402
88.04486.104
注:(I)牙形半角偏差以两个半角偏差绝对值的算术平均值来确定。②螺距偏差系指螺纹全长上任意两牙间的距离与公称距离之差偏差
不大于
半角偏
差(分)
±12°±0.002
4.锥螺纹量规的锥度偏差是指在长度L,上的锥度允许变动量。5.锥螺纹环规,应当用相应的锥螺纹校对塞规来校准,使得锥螺纹环规的基面与锥螺纹校对塞规的基面齐平,其不齐平的差值应不大于0.1mm。6.锥螺纹环规沿中径的磨损公差是以锥螺纹环规与锥螺纹校对塞规旋合时,其基面相对位移量K来表示,K值不应超过表4的规定。螺纹代号
ZM 6 ~ZM18
GB 1581-79
ZM22~ZM27
二、技术要求
ZM33~ZM60
ZM76ZM90
7。外观不应有锈迹、毛刺、裂纹等影响使用性能的外部缺陷。8.锥螺纹量规的材料应用CrMn、GCr15或性能相当和更好的材料制成,其硬度应为HRC58~-65。9.锥螺纹量规牙型表面的表面光洁度应不低于√9,基面及台阶面的表面光洁度应不低于√7(按GB1031—68)。
10.锥螺纹塞规与手柄的连接部分尺寸和公差以及手柄的尺寸和公差应按JB1076一67执行,其连接应可靠。
三、使用方法
11锥螺纹量规是采用综合检查的方法来检查锥螺纹中径的(其中包括由于螺距、牙型半角、以及锥度等参数误差所引起的中径变化)。外锥螺纹用锥螺纹环规检查。当环规旋合在外锥螺纹制件上时,外锥螺纹小端端面应在锥螺纹环规的台阶之间或与其中一个台阶齐平,该制件即合格。内锥螺纹用锥螺纹塞规检查。当把塞规旋入内锥螺纹制件时,螺孔端面应在锥螺纹塞规的台阶之间或与其中一个台阶齐平,该制件即合格。四、标志和包装
12。锥螺纹塞规应在适当地方标志:(1)厂标,
(2)螺纹代号。
13.锥螺纹环规应在适当地方标志:(1)厂标,
(2)螺纹代号;
(3)检验该锥螺纹环规所用锥螺纹校对塞规的产品序号。14.锥螺纹校对塞规应在适当地方标志:(1)厂标;
(2)螺纹代号,
(3)产品序号。
15.包装盒上应标志:
(1)制造厂名称或厂标;
(2)产品名称;
(3)螺纹代号。
16。锥螺纹量规在包装前清洗干净,经防锈处理,并妥善包装。17.锥螺纹量规在出厂时应附有产品合格证或合格标记。h06
小提示:此标准内容仅展示完整标准里的部分截取内容,若需要完整标准请到上方自行免费下载完整标准文档。