首页 > 船舶行业标准(CB) > CB/T 965-1995 橡胶补偿接管
CB/T 965-1995

基本信息

标准号: CB/T 965-1995

中文名称:橡胶补偿接管

标准类别:船舶行业标准(CB)

标准状态:现行

出版语种:简体中文

下载格式:.zip .pdf

下载大小:829554

相关标签: 橡胶 补偿 接管

标准分类号

关联标准

出版信息

相关单位信息

标准简介

CB/T 965-1995.
1主题内容与适用范围
CB/T 965规定了橡胶补偿接管(以下简称接管)的产品分类、技术要求.试验方法、检验规则、标志、包装、运输和贮存。
CB/T 965适用于船舶管路中起补偿作用的连接件。
2引用标准
GB 191-90包装 储运图示标志
GB/T528--82硫化橡胶和热塑性橡胶拉伸性能的测定
GB/T 531- -83硫化橡 胶邵尔A型硬度试验方法
GB 566-83船 用胶管夹箍
GB569-65船用法兰连接尺寸和密封面
GB 1682-82硫化橡 胶脆性温度试验方法
GB 1690-82硫化橡胶耐液体试验方法
GB 2501- -89船用法 兰连接尺寸和密封面(四进位)
GB2828--87逐批检查计数抽样程序及抽样表(适用于连续批的检查)
GB2829--87周期检查计数抽样程序及抽样表(适用于生产过程稳定性的检查)
GB 3512- -83橡胶热空气老 化试验方法
3产品分类
3.1 接管的型式规定如下:
A型---颈部直径按GB566尺寸插入的橡胶补偿接管

标准图片预览

CB/T 965-1995 橡胶补偿接管
CB/T 965-1995 橡胶补偿接管
CB/T 965-1995 橡胶补偿接管
CB/T 965-1995 橡胶补偿接管
CB/T 965-1995 橡胶补偿接管

标准内容

中华人民共和国船舶行业标准
CB/T 965—1995Www.bzxZ.net
橡胶补偿接管
1995-12-19发布
中国船舶工业总公司
1996-08-01实施
中华人民共和国船舶行业标准
橡胶补偿接管
1主题内容与适用范围
CB/T965-1995
分类号:U55
代替CB965-80
本标准规定了橡胶补偿接管(以下简称接管)的产品分类、技术要求、试验方法、检验规测、标志、包装、运输和贮存
本标准适用于船舶管路中起补偿作用的连接件。2引用标准
GB 191—90
包装储运图示标志
GB/T528—82
硫化橡胶和热塑性橡胶拉伸性能的测定GB/T531—83
硫化橡胶邵尔A型硬度试验方法
GB566—83
GB569—65
GB1682—82
船用胶管夹箍
船用法兰连接尺寸和密封面
硫化橡胶脆性温度试验方法
GB1690-82
硫化橡胶耐液体试验方法
GB2501-—89
GB2828—87
GB2829-87
船用法兰连接尺寸和密封面(四进位)逐批检查计数抽样程序及抽样表(适用于连续批的检查)周期检查计数抽样程序及抽样表(适用于生产过程稳定性的检查)GB3512—83
橡胶热空气老化试验方法
3产品分类
3.1接管的型式规定如下:
A型--
颈部直径按GB566尺寸插入的橡胶补偿接管法兰连接尺寸按GB569的橡胶补偿接管法兰连接尺寸按GB2501的橡胶补偿接管3.2接管的基本参数按表1规定。表1
公称通径,mm
公称压力,MPa
真空度,kPa
适用温度,c
适用介质
中国船舶工业总公司1995-12-19批准型
40~250
—30~+80
空气、非饮用水、海水、热水、燃油、滑油32250
1996-08-01实施
CB/T965
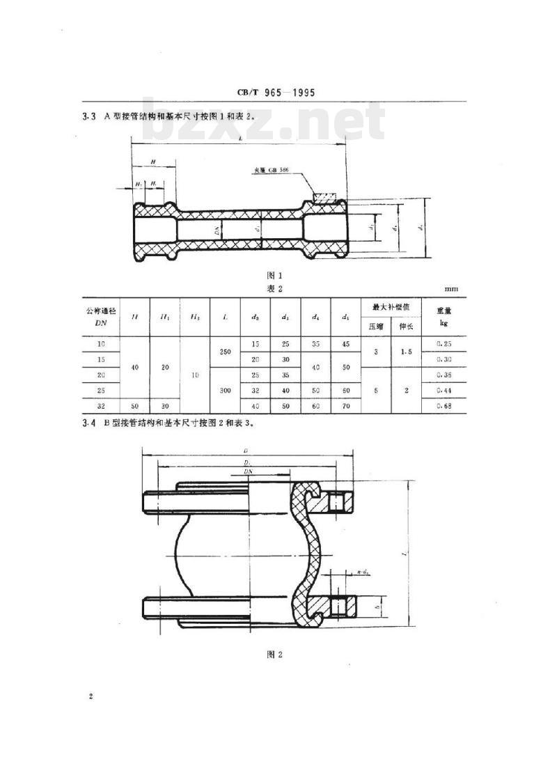
3.3A型接管结构和基本尺寸按图1和表2。尖箍GB566
公称通径
3.4B型接管结构和基本尺寸按图2和表3。0
最大补偿值
公称通径
CB/T965-1995
5BS型接管结构和基本尺寸按图2和表4。3.5
公称通径
标记示例
最大补偿值
最大补偿值
公称压力为0.6MPa,公称通径为20mm,颈部直径按GB566尺寸插入的橡胶补偿接管:补偿接管A20CB/T965—1995
公称压力为0.6MPa,公称通径为100mm,法兰连接尺寸按GB569的橡胶补偿接管:补偿接管B100CB/T965--1995
公称压力为0.6MPa,公称通径为150mm,法兰连接尺寸按GB2501的橡胶补偿接管:补偿接管
BS150:CB/965-—1995
4技术要求
接管表面不得有气泡、裂缝,不允许外表面有超过1.5mm、内表面超过0.75mm深的压痕及毛刺41
CB/T965-1995
4.2接管应采用耐油橡胶制造,其物理性能应符合表5要求。表5
扯断强度,MPa
相对伸长率,%
永久伸长率,%
邵氏度(参考),HA
脆性温度,c
项目名称
10mm×10mm×10mm试样在高速机械油中浸24h膨账比,%10mm×10mm×10mm试样在食盐溶液中浸24h膨胀比,%在70C滑轮机油中没24h膨胀比,%基尔氏老化系数70CX96h.%
4.3接管的试验压力为0.9MPa,在试验压力下,保压10min后,不应出现渗漏、凸起、局部膨账、开裂及帘布网破裂声。
4.4接管的爆破试验压力不小于1.8MPa,在试验压力下保压5min,不应有渗漏、开裂缺陷。4.5接管泵压在工作压力时,应能经受往复频率为1~20Hz,振幅为最大补偿的范围值,往复次数不小于10″次的疲劳试验考核,试验后接管不应损坏。4.6接管钢法兰须热浸锌,锌层厚度不小于430g/m2。4.7法兰连接尺寸按GB569和GB2501的规定。5试验方法
5.1用目测及规定的量具对4.1条,4.6条、4.7条进行检测。5.2用X光射线透视检验橡胶内部钢丝绳圈,钢丝绳圈不允许断裂。5.3橡胶物理性能的试验方法。
5.3.1按GB/T528对表5中序号1、2.3进行试验。5.3.2按GB/T531对表5中序号4进行试验。5.3.3按GB1682对表5中序号5进行试验。5.3.4按GB1690对表5中序号6、7、8进行试验。5.3.5按GB3512对表5中序号9进行试验5.4接管制成24h后方可进行液压试验,保压10min,结果应满足4.3条要求。5.5在规定的试验压力下对接管进行强度试验,保压5min,试验结果应满足4.4条要求。5.6在专用试验设备上对接管进行疫劳试验,试验应符合4.5条要求。6检验规则
接管检验分出厂检验和型式检验。6.1出厂检验
6.1.1接管由制造厂技术检验部门验收并出具合格证书。6.1-2接管的出厂检验分全检和抽检。4
CB/T965-1995
6.1.2.1全检项目为4.1条、4.6条,4.7条。6.1.2.2正常生产时,对4.2条中的物理性能逐项进行试验。6.1.2.3接管的批检抽样按GB2828中一次正常抽样方案,见表6。表6
抽检内容
检验方法
注:①抽检批量N-26~50
检查水平
②拍检中有不合格品时充许全检剔除不合格品。6.2型式试验
6.2.1有下列情况之一时,均需进行型式检验:AQL
新产品或老产品转厂生产的试制定型鉴定;b.
正式生产后,如结构、材料、工艺有较大改变;正常生产后,定期或积累一定产量后;产品长期停产后,恢复生产时:出厂检验结果与上次型式检验有较大差异时;国家质量监督机构指出进行型式检验的要求时。正常生产时,型式检验每二年进行一次。次抽样方案
样本数
型式检验应从出厂检验的合格产品中抽取,经型式检验后的产品不得作为合格品交货。6.2.4
判别数据见表7(按GB2829)。
检验项目
检验方法
6.2.5型式检验后处理方法
型式检验合格可继续生产;
判别水平
不合格质量水平
型式检验不合格,应停产查明原因,采取措施,直到新的检验合格后才能继续投产。7标志、包装、运输和贮存
7.1标志
每只接管均应有制造厂商标、型号和制造日期。7.2包装
7.2.1接管需用木箱包装,箱内衬有防潮和防护材料,箱内应有出厂合格证。7.2.2包装箱上应有符合GB191规定的“小心轻放”、“怕湿”等字样及图示标志。7.3运输
运输过程中应防止日光直晒、雨、雪浸淋,严禁与油类、润滑脂、酸,碱等物质接触。7.4接管应保存在通风良好的仓库中,并要求做到:样本数
避免阳光直接照射;
离发热发光源1m以外;
CB/T965-1995
避免受油类及酸、碱物质的沾染;处于自由状态。
附加说明:
本标准由全国船用机械标准化技术委员会管系附件分技术委员会提出。本标准由中国船舶工业总公司603所归口。本标准由无锡中策减震器有限公司、503所负责起草。本标准主要起草人周纯、昊绍曾。
小提示:此标准内容仅展示完整标准里的部分截取内容,若需要完整标准请到上方自行免费下载完整标准文档。